Developments
RESIDENTIAL DEVELOPMENT
The proposed rezoning is for a property located at 1210 N NC 16 Hwy. The 11.59 +/- acres property is currently zoned CC (Corridor Commercial) and proposed to be rezoned CC-CD (Corridor Commercial-Conditional District) to allow for the creation of a grocery store along with four other commercial outlots. There would be a proposed new road connection across from Zelkova Ct NW at the light and a right-in, right-out entrance to the right of the property off of N NC 16 Hwy.
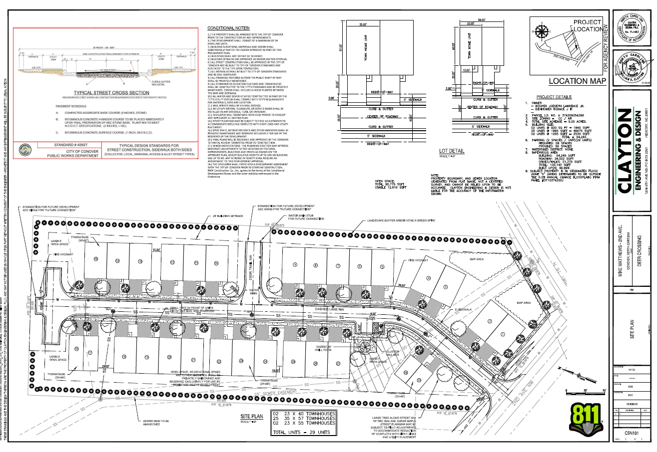
The proposed development is for a 5 acre +/- property located at 1012 2nd Ave NW. The property was rezoned to NR-CD (Neighborhood Residential-Conditional District) to allow for the creation of 29 townhomes in various sizes on March 2, 2026.
This rezoning was approved in November 2025 for a single-family development of 58 units called Caldwell Commons. The current parcel is 17.601 acres and is currently undeveloped besides some initial grading and utility installation from the previous project. The current zoning district is NC-CD (Neighborhood Center-Conditional District).
The proposed development would be for a maximum of 159 single-family homes. The development would have a mix of two different lot sizes with open space preserved for amenities.
This rezoning is for a conditional district of the property at 211 10th St NW and 802 3rd Ave NW. The properties were rezoned previously in 2024 for a maximum of 139 townhomes. This preposed rezoning would instead be for NR-CD (Neighborhood Residential-Conditional District) to allow for a maximum of 72 single-family homes. The homes would be rear-loaded by alleyways and front-loaded in other areas.
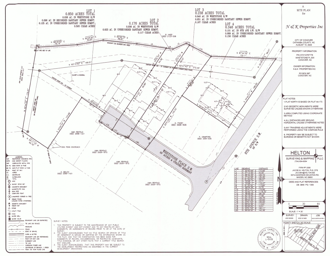
This a revision to a planned unit development of areas that were not constructed of the originally approved Whetstone Manor. This revision will add a triplex along Whetstone Pl SW that will be individually divided and a single-family home along 8th Ave SW.
The proposed rezoning is for the NR-CD district to create a conditional district for a single-family development. The proposed rezoning is for three properties that are located between Keisler Dairy Rd and Emmanuel Church Rd. The development would consists of a maximum of 230 lots with two varying sizes widths along with an amenity area and walking path.
The proposed rezoning is for the creation of a townhome development for 49 townhomes. This plan was approved previously but the timeline to begin development had expired, so they are seeking the same rezoning district of MX-CD (Mixed Use-Conditional District).
R 24
-04 Hunsucker Townhomes
The planned development is for the creation of a 99 townhome style development at the intersection of Rock Barn Rd NE and St Johns Church Rd NE. The property was rezoned NR-CD (Neighborhood Residential-Conditional District) and approved by City Council on 10/7/2024.
R 24-06 Hunsucker Proposed Single-Family Rezoning
The rezoning is for portions of the properties below outlined in the rezoned area. The property was rezoned by the City Council on 10/7/2024 to the NR (Neighborhood Residential) zoning district. The proposed use is for a single-family residential development.
Wagner Glen
Wagner Glen is a planned development that was approved by City Council on 3/4/2024. This development creates 137 single-family homes and is located between Indian Springs and the Newton-Conover Middle School. This development will connect Northern Drive all the way from Herman Sipe Road to County Home Road.
Shuford Village
Shuford Village development is located at 406 Rock Barn Road and connects to 921 Conover Boulevard E This development will create two commercial outlots on Conover Boulevard E Shuford Village is a development that can contain a maximum of 197 single-family townhomes. The development will contain walking trails, a community building, and a playground for the residents. It will be conveniently located across the street from the YMCA.
Canova Crossing
Canova Crossing development was approved in July 2023. This development is a town-home development that will create 105 townhome units. This development will be located along County Home Road and 5th Street NW.RockHaven Subdivision
The RockHaven Subdivision was approved in 2023 for the creation of 51 single-family lots. Construction is expected to start in 2024. The property is located along Rock Barn Road NE and Shook Road
Mooreland Drive Duplexes
This development was approved by the City Council in April 2023. This development will consist of 4 duplexes, creating 8 units. This development will be located at 103 Mooreland Drive NE and is along Conover Boulevard E.
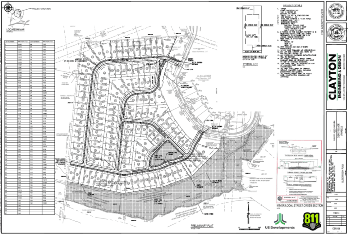
Cline Village Phase III
Fern Hill is a six-building apartment complex containing 72 units. The apartment buildings will be three stories high. Construction is currently underway on these apartments and should be completed soon. Fern Hill will contain eight handicap accessible units, a playground area, clubhouse area, dumpster enclosures, and mail kiosks for tenants. The new road name located within the Fern Hill Development will be Fiddlehead Ln SE and it will be a private street.
Please do not contact the city about any leasing information. You will need to contact the leasing company at (919) 878-0522 x 265.
RECREATIONAL & COMMERCIAL DEVELOPMENT
Rural transformation Grant
The City of Conover will utilize existing public property to expand pedestrian access throughout the downtown to help spur foot traffic to local businesses and connect the community to other amenities such as the local farmers market, playgrounds and outdoor amphitheater. The trail will also create access to the Southwest neighborhood.
Microsoft Data Center
In collaboration with Catawba County Economic Development Corporation (EDC), the City of Conover is proud to present the an exciting development project of the Microsoft Data Center. The project started as a rezoning to make sure the properties were all zoned the same zoning to further combine them later. The site encompasses 220 +/- acres and is partially within the flood plain. Due to this, they will make sure that construction does not enter into that area. This site is located along NC HWY 16 and is located behind the Smithfield development. For more information on this site and partnership, please use the link below to the press release from the Catawba County EDC.